Hopewell cottage, East Keswick, LS17
Property Features
- Three bedroom mid terrace
- Family home
- Great village location
- Spacious living room
- No onward chain
- Short drive to local amenities
- Choice of pubs in the area
- 20 minute drive into Leeds
Property Summary
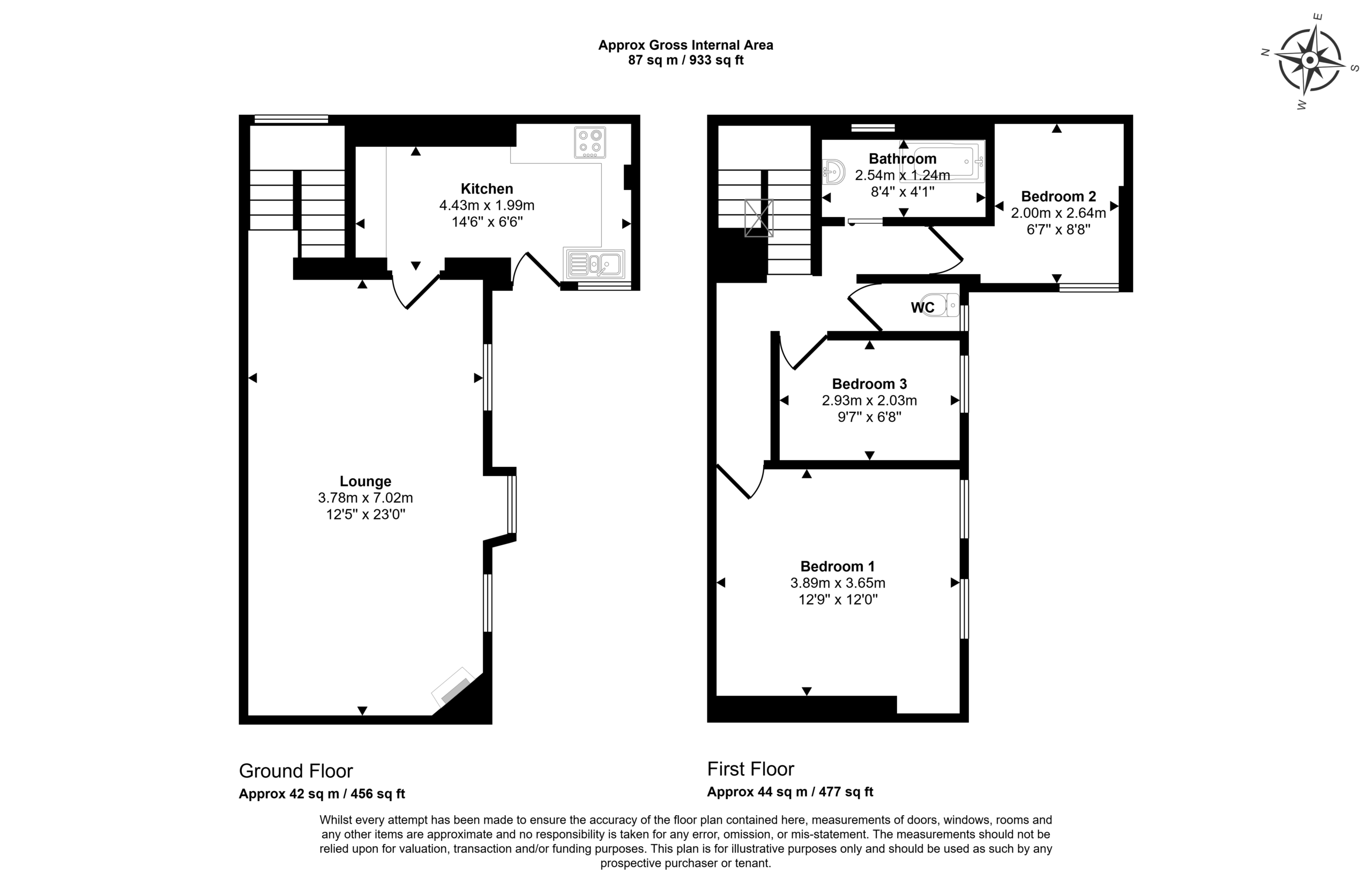
Offered to the market vacant with no onward chain, Hopewell Cottage is a charming three-bedroom mid-terrace property ideally positioned within the sought-after village of East Keswick.
The accommodation is arranged over two floors. To the ground floor, the property features a spacious lounge with an attractive feature fireplace, creating a warm and welcoming living space. To the rear, there is a practical fitted kitchen, offering ample storage and workspace for everyday living.
The first floor comprises a master bedroom, two further well-proportioned bedrooms, a family bathroom, and the added convenience of a separate WC.
Externally, the property benefits from a rear garden along with allocated parking.
Set within a small and desirable village, the cottage enjoys a peaceful setting while remaining close to local amenities, schools, and transport links, making it well suited to a range of buyers including first-time purchasers, downsizers, or investors.
An excellent opportunity to acquire a well-located home with character, offered with the advantage of no onward chain.















