Port Street, Evesham, WR11
Property Features
- Three bedroom maisonette
- Central location in Evesham
- No onward chain
- Well presented
- Exposed beams throughout
- 988 Years remaining on the lease
- Parking available
- Close to local shops & transport links
Property Summary
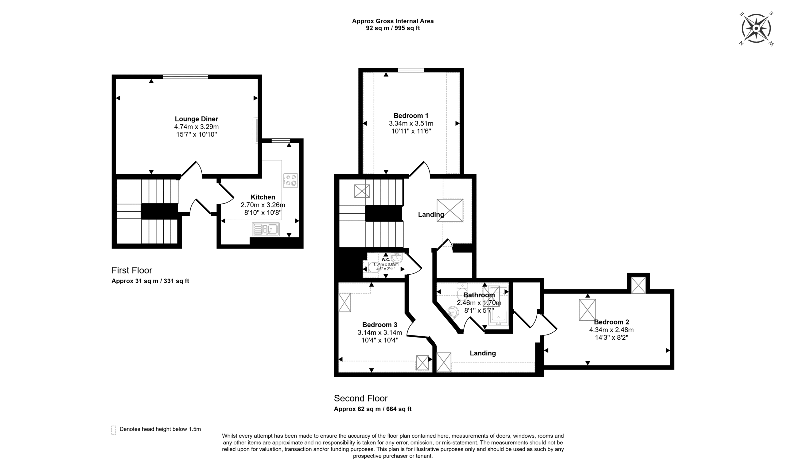
Welcome to 10 Port Street — a spacious and well-presented three-bedroom maisonette located in the vibrant heart of Evesham.
This charming home offers versatile living across two floors, combining comfort, practicality, and an unbeatable central location.
On the first floor, you’ll find a generous lounge/dining area, perfect for relaxing or entertaining guests, alongside a fitted kitchen with ample storage and workspace. Upstairs, the property features three bedrooms, a family bathroom, and a separate WC.
Outside, residents have access to off-street parking, while the town centre’s array of shops, restaurants, and transport links are right on your doorstep.
With 988 years remaining on the lease and an annual service charge of just £214, this home offers exceptional value and flexibility. Sold vacant with no onward chain, it’s an ideal purchase for first-time buyers, downsizers, or investors seeking a ready-to-move-in property in a prime location.















